
This project is a conceptual shop-in-shop design developed from Wildfang’s brand values and core products, centered on the theme “Office, Not Office.” Existing site structures are reinterpreted as bold spatial language, while interactive fixtures are used to amplify the brand’s attitude. The design explores the tension between functionality and expression within a contemporary retail environment. The final proposal presents my vision for a Wildfang store design.
Duration
Type
Location
Software
6 weeks
2025 09. - 2025 10.
Retail Design
Conceptual Brand Design
Shop-in-Shop
Bloomingdale, Level 2
59th Street and, 1000 Third
Avenue, Lexington Ave,
New York, NY 10022.
Rhino
Unreal Engine 5.6
Figma

Location
Thumbelina navigates through an unpredictable world—captured, confined, and ultimately freed into a realm of belonging—this boutique hotel creates a layered spatial experience, where visitors transition from mystery and enclosure to openness and delight.
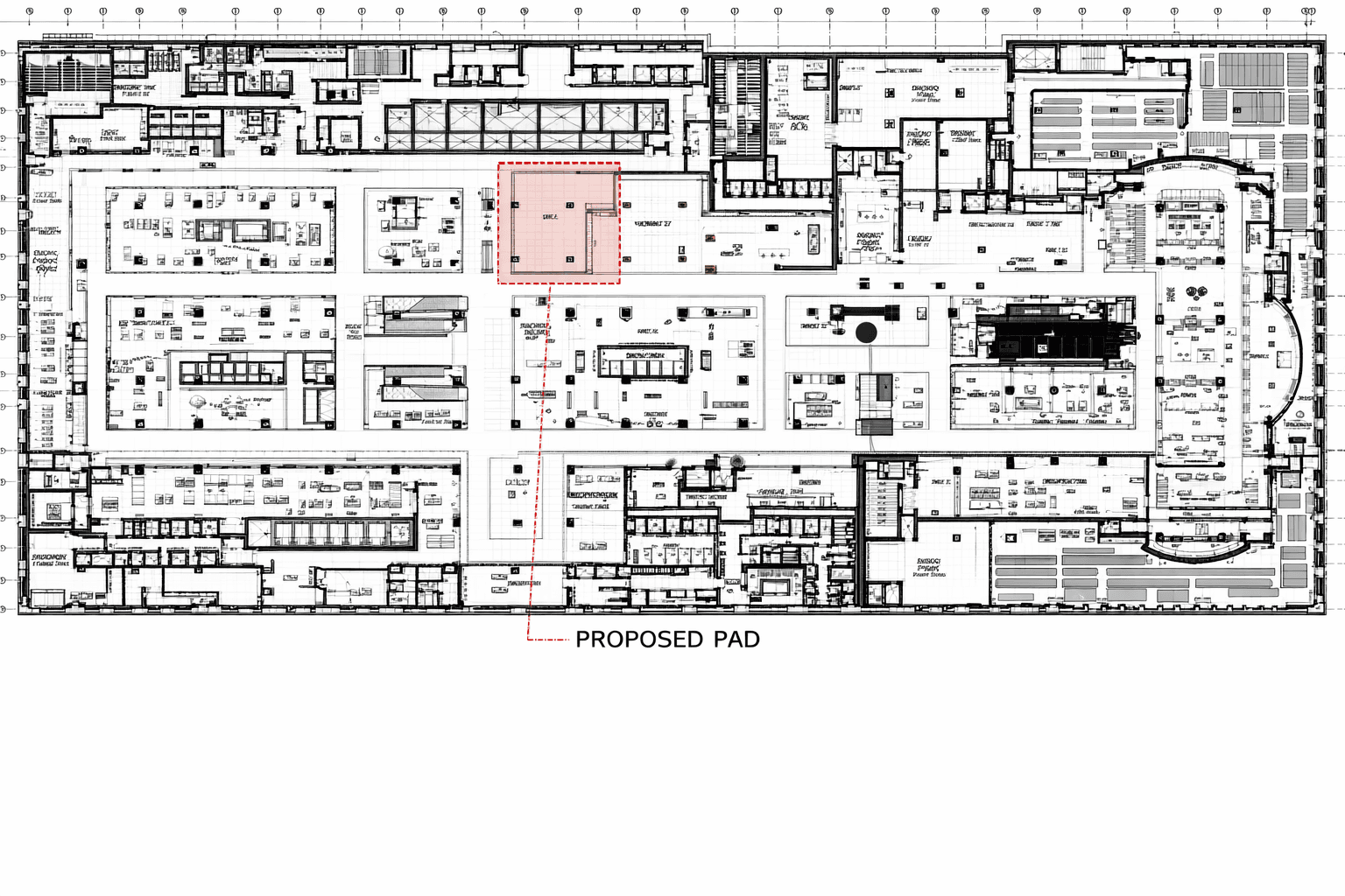
Situated within Bloomingdale’s flagship store at the intersection of 59th Street and Third Avenue, the shop-in-shop is located on Level 2, precisely at the step-out point between the first-floor and second-floor escalators. This transitional zone—where visitors arrive, reorient themselves, and decide where to move next—becomes a critical moment of pause within the department store’s circulation flow.
The spatial narrative unfolds like a staged office drama: a desk becomes a display plinth, filing cabinets morph into product shelving, and scaffolding doubles as both prop and structure. Movement through the store follows an “identity arc”—from entering as an observer, to trying on roles, to exiting as a participant in Wildfang’s queer workplace theatre.

Wildfang Background
Thumbelina navigates through an unpredictable world—captured, confined, and ultimately freed into a realm of belonging—this boutique hotel creates a layered spatial experience, where visitors transition from mystery and enclosure to openness and delight.

Founder
Who established?

Values
What do they care?

Products
What do they sell?
Design Experience
Thumbelina navigates through an unpredictable world—captured, confined, and ultimately freed into a realm of belonging—this boutique hotel creates a layered spatial experience, where visitors transition from mystery and enclosure to openness and delight.
The store is staged as a subversive office theatre— a queer workplace charged with tension.
Customers are not spectators but actors entering the script, immersed in Wildfang’s ongoing play of gender-fluid identity.
Models and campaign visuals depict provocative tomboy office scenes.Trying on workwear and suits becomes a form of role-play.


Design Strategy
Thumbelina navigates through an unpredictable world—captured, confined, and ultimately freed into a realm of belonging—this boutique hotel creates a layered spatial experience, where visitors transition from mystery and enclosure to openness and delight.
The design transforms structural elements and fixtures into an integrated spatial system, where columns anchor circulation, floor and ceiling engage in a controlled visual dialogue, and deconstructive fixtures choreograph fitting, messaging, and reflection. Together, these strategies create a layered retail environment that guides movement, frames the body, and allows brand identity to be experienced through spatial continuity, gesture, and gradual revelation.

Material Strategy
Thumbelina navigates through an unpredictable world—captured, confined, and ultimately freed into a realm of belonging—this boutique hotel creates a layered spatial experience, where visitors transition from mystery and enclosure to openness and delight.
Tailored / Playful / Restrained
Materials are curated to reflect the brand’s sharp, dandy-like confidence while remaining intentionally restrained.
Arte’s Chintz wallpaper introduces a restrained sense of whimsy that softens the space, while neutral finishes and metal accents recede to foreground the garments—evoking the cool, precise language of the office and balancing elegance with attitude in a composed retail setting.
Tailored / Playful / Restrained
Materials are curated to reflect the brand’s sharp, dandy-like confidence while remaining intentionally restrained.
Arte’s Chintz wallpaper introduces a restrained sense of whimsy that softens the space, while neutral finishes and metal accents recede to foreground the garments—evoking the cool, precise language of the office and balancing elegance with attitude in a composed retail setting.
finishes and metal accents recede to foreground the garments—evoking the cool, precise language of the office and balancing elegance with attitude in a composed retail setting.
finishes and metal accents recede to foreground the garments—evoking the cool, precise language of the office and balancing elegance with attitude in a composed retail setting.


fixture B / statement wall

"I'm my own muse,".
Positioned along the primary sightline, the statement wall functions as a cultural amplifier rather than a backdrop.

Fixture B reframes the act of changing clothes as a deliberate, almost theatrical transition. The enclosed yet permeable geometry slows the body, heightening awareness of posture, reflection, and anticipation. Rather than disappearing into a hidden fitting room, the wearer remains spatially present—occupying a moment of pause between public display and private transformation.
Material opacity, layered surfaces, and controlled sightlines create a sense of drama without full exposure. The experience is not about concealment, but about agency—choosing when to be seen and when to withdraw. In this way, the fitting room becomes an embodied ritual: a space where identity is tested, affirmed, and re-entered into the retail floor with intention.
Lightbox setting off Power Suit
Display Strategy
The display strategy balances authority and wit: the lightbox isolates the power suit with a cinematic, almost covert presence, emphasizing posture, control, and quiet confidence, while the Chintz backdrop introduces a refined dandy sensibility that softens the architecture with texture and playfulness. Together, they frame the garments within a composed yet expressive setting—where tailored power meets attitude, and Wildfang’s identity is articulated through contrast rather than excess.


The semi-open fitting room is articulated through a geometric framework, creating a space that feels both exposed and protected. Reflective materials intensify the experience, echoing the cold clarity and authority of an office environment while allowing the body to remain visibly present within the architecture. This controlled transparency transforms the act of changing into a moment of composure and self-definition, where posture, reflection, and spatial tension reinforce a sense of strength.
Alongside it, the photo wall operates as a visual extension of the fitting experience. Arranged as a grid of gestures and poses, it narrates Wildfang’s brand attitude through movement, styling, and embodied confidence. Rather than functioning as passive imagery, the wall becomes an active backdrop that mirrors the wearer’s stance, allowing personal identity and brand expression to intersect within the retail environment.
Lobby Technical Drawings

The End
Thank you!
More Projects





